На Омской

Застройщик: "Новострой КПД плюс"


Получить бесплатную консультацию


ОПИСАНИЕ

Описание

Застройщик

За 21 год успешной работы компания «Новострой КПД плюс» реализовала более 7-ми тысяч квартир в новостройках. Микрорайон «Куйбышевский-2», дома на улицах Звездова, Омской, Гуртьева, Дианова, Ишимской, Ватутина, Дмитриева, 1 Башенный переулок, 4-ой Транспортной, микрорайон «Тарская Крепость», микрорайон «Модерн» (2-я Поселковая), микрорайон «Суворовская усадьба» и прочие проекты - были реализованы данным застройщиком
Описание

Архитектура

Дом возводится 16-этажный 1-подъездный, с новыми современными планировками квартир. Все квартиры – евродвушки! Можно выбрать под свои цели ту, которая придется вам по душе. Для жителей в доме будут действовать два лифта: грузовой и пассажирский; для маломобильных граждан построен пандус.
Описание

Квартиры

Квартиры предполагается сдавать с отделкой «под ключ». В них будет вся сантехника и электроплита, линолеум и обои, застекленные лоджии, входные и межкомнатные двери, домофон, приборы учета горячей и холодной воды, электричества, окна с тройным остеклением и рамами из экологически чистого материала –дерева.
Описание

Придомовая территория

Во дворе обустраиваются детские и спортивные площадки по современным стандартам

ПЛАНИРОВКИ

Если Вас заинтересовала планировка - обязательно сообщите нам об этом
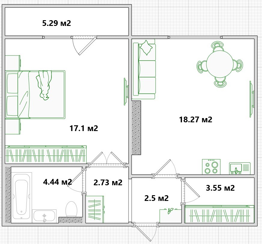
Планировка На Омской
Квартира
1-комнатная
3 этаж из 16 этажей
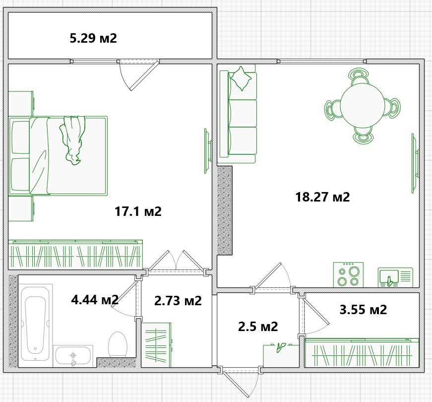
Планировка На Омской
Квартира
1-комнатная
6 этаж из 16 этажей
Планировка На Омской
Квартира
1-комнатная
9 этаж из 16 этажей
Планировка На Омской
Квартира
1-комнатная
2 этаж из 16 этажей
Планировка На Омской
Квартира
1-комнатная
6 этаж из 16 этажей
Планировка На Омской
Квартира
1-комнатная
3 этаж из 16 этажей
Планировка На Омской
Квартира
1-комнатная
7 этаж из 16 этажей
Планировка На Омской
Квартира
1-комнатная
8 этаж из 16 этажей
НЕ НАШЛИ НИЧЕГО ПОДХОДЯЩЕГО?
Напишите нам - подберем то, что нужно!

ХОД СТРОИТЕЛЬСТВА

котлован Подготовка территории котлована
котлован Подготовка территории котлована
фундамент Строительство фундамента
фундамент Строительство фундамента